Negozio in affitto

Saonara, Via Ugo Foscolo
€ 800 / mese
2 locali 2 locali
110 Mq 110 Mq
1 bagno 1 bagno

Negozio in affitto

Saonara, Via Ugo Foscolo

Descrizione annuncio

LOCALITA’: SAONARA (PD) -

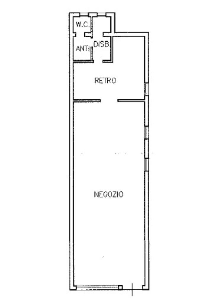
COSA SAPERE SULL’IMMOBILE: l’immobile che proponiamo in LOCAZIONE è un negozio, fronte strada, di 100 mq ca, dotato di canna fumaria.

PARTICOLARITA’ e DESCRIZIONE: l’immobile si sviluppa a pianta regolare rettangolare, con area commerciale di 90 mq ca, ben illuminata da luce naturale grazie all’ampia vetrina fronte strada ed area laboratorio, posta nel retro dell’immobile, di 38 mq ca con servizio igienico dotato di antibagno.

UBICAZIONE e CONTESTO: l’immobile è posto fronte strada sulla via principale in località Saonara (PD) in zona a destinazione residenziale/commerciale.

Mostra tutto

Nelle vicinanze

Trasporto pubblico Trasporto pubblico
Capolinea Villatora P.zza Mazzini
Capolinea Villatora P.zza Mazzini
2,4 Km
Trasporto pubblico
2,5 Km
Ricariche auto elettriche Ricariche auto elettriche
Piazza Guglielmo Marconi
2,8 Km
Scuole Scuole
Scuole
450 m
Ex Scuola Elementare "Leonardo da Vinci"
2,9 Km
Scuola Primaria Don Milani
3,0 Km
Farmacia Farmacia
Farmacia
2,3 Km
Querincis
3,0 Km
Supermercati Supermercati
Alì Saonara
650 m
Prix
2,4 Km
Conad
2,7 Km
Prix Quality
2,8 Km
Eurospar
2,9 Km
Bar Bar
Maori Cafè
2,6 Km
Bar
2,8 Km
Ristoranti Ristoranti
Antica Trattoria al Bosco
670 m
Trattoria ai Vivai
1,2 Km
Agriturismo Marchetto
1,5 Km
Pizzeria Per asporto Da Taffy
2,8 Km
Osteria al Sole
2,8 Km
Mostra tutto

Caratteristiche

Rif.:
61133830
Piano:
Terra di 3
Totale piani:
3
Condizionamento:
Autonomo
Ascensore:
No
Riscaldamento:
Autonomo
Mostra tutto
Prezzo Prezzo
€ 800 / mese
Spese annue Spese annue
€ 0

Classe Energetica

E
E
E
E
E
E
E
E
E
EP globale non rinnovabile:
165.30 kW h/m² anno
EP globale rinnovabile:
165.30 kW h/m² anno
EP invernale del fabbricato:
EP estiva del fabbricato:
Anno di costruzione:
1970
Riscaldamento:
Autonomo
Tipo impianto:
A radiatori
Tipo alimentazione:
Metano

Ti interessa visionare l'immobile?

Fissa un appuntamento  Fissa un appuntamento

Richiedi informazioni

Clicca su Leggi per aprire l'informativa
* Questi campi sono obbligatori
Affiliato
Industriale Est Srl
Via Longhin, 93/95 35129 Padova (PD)

Il nostro staff


  • Ida Carraro
    Affiliata

  • Domiziano Daniele
    Responsabile

  • Nicole Marin
    Coordinatrice
Via Longhin, 93/95 35129 Padova (PD)
Zona: Padova Est-Padova ZIP - Camin
Mostra su mappa
Orari: Dal lunedì al venerdì: dalle 8:30 alle 12:30 e dalle 14:00 alle 19:00. Sabato dalle 9:00 alle 12:00
Affiliato
Industriale Est Srl
Via Longhin, 93/95 35129 Padova (PD)

2026 Tecnocasa Franchising S.p.A. - P. IVA 08365160152 - Via Monte Bianco 60/A 20089 Rozzano (MI). Ogni agenzia ha un proprio titolare ed è autonoma. Privacy policy | Policy utilizzo | Cookie policy