Ufficio in affitto

Padova, Via Delle Granze - Camin
€ 6.200 / mese
9 locali 9 locali
476 Mq 476 Mq
4 bagni 4 bagni

Ufficio in affitto

Padova, Via Delle Granze - Camin

Descrizione annuncio

LOCALITA’: CAMIN (PD) -

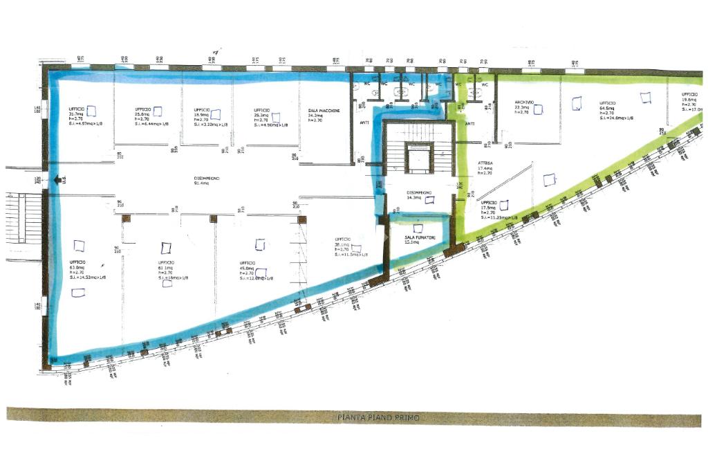
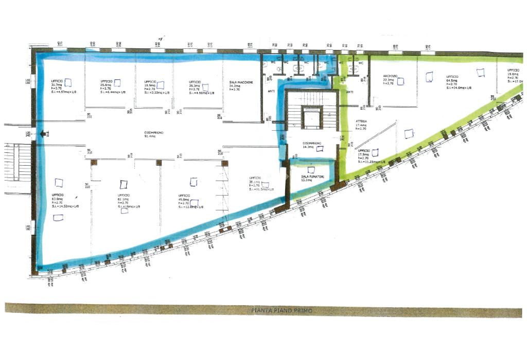
COSA SAPERE SULL’IMMOBILE: proponiamo in LOCAZIONE ufficio di complessivi 476 mq, di rappresentanza e molto curato al primo piano con ascensore, impianto di riscaldamento e raffrescamento, dispone anche di 8 posti auto.

PARTICOLARITA’ e DESCRIZIONE:

- Superficie: la superficie complessiva di 476 mq è distribuita in 9 ampi locali di cui una sala server e una sala riunioni di 63 mq. Inoltre riporta una zona ristoro e disimpegno comune al piano terra

- Posizione: l'ufficio si trova al piano primo di una confortevole palazzina direzionale con comodo accesso separato e ascensore.

- Impianti: l'immobile è dotato di un buon sistema di riscaldamento e condizionamento completamente autonomo ed impianto elettrico a norma.

- Servizi igienici: l'ufficio è corredato da 4 servizi igienici a norma disabili.

- Parcheggio: la palazzina dispone di ampio parcheggio ad uso esclusivo e 8 posti auto riservati.

- Accessibilità: l'accesso ai locali è facilitato dal fatto che l’immobile è sito al primo piano con ascensore, rendendo l'immobile pienamente accessibile anche a persone con mobilità ridotta.

- Luminosità: gli spazi sono caratterizzati da una eccellente buona naturale, grazie alla presenza di 2 ampie vetrate fronte strada che danno un’ottima visibilità.

- Spese condominiali: le spese condominiali dell'immobile ammontano a 8000 euro/annui.

- Canone: SOGGETTO ad IVA.

UBICAZIONE e CONTESTO: lo stabile è collocato nel quartiere di Camin (PD), nel comune di Padova, a pochi chilometri dal centro città e a ridosso della zona industriale e artigianale di Camin. La posizione geografica lo rende strategico e ben collegato sia alla città di Padova che alle principali arterie stradali, come la tangenziale Est, l’autostrada A13 e la ferroviaria, consentendo facili spostamenti verso altre città della regione. La zona è prevalentemente industriale, vanta anche aree commerciali e residenziali, che contribuiscono alla vivacità economica della zona.

Mostra tutto

Nelle vicinanze

Trasporto pubblico Trasporto pubblico
Padova Interporto
Padova Interporto
1,7 Km
Granze 17
Granze 17
60 m
Vigonovese 124
Vigonovese 124
260 m
Ricariche auto elettriche Ricariche auto elettriche
Serenissima Service | EnelX
690 m
ENEL X EVA+ e-distribuzione Via Urugay, 30 Padova
1,4 Km
Fondazione Fenice Green Energy Park Onlus | Driwe
2,0 Km
IKEA Padova
2,4 Km
Scuole Scuole
Scuola Elementare Giuseppe Ferrari
80 m
Scuola media inferiore Tullio Levi Civita
150 m
Centro provinciale di istruzione professionale edile
250 m
Scuola elementare "Galileo Galilei"
2,0 Km
Scuole
2,1 Km
Farmacia Farmacia
Farmacia Gennaro
310 m
Farmacia alla Riviera Castagnaro Liliarosa
2,0 Km
Farmacia
2,2 Km
Farmacia Faccioli
2,6 Km
Farmacia all'Ippodromo
2,7 Km
Ospedali Ospedali
Croce Rossa
2,7 Km
Supermercati Supermercati
Lando
740 m
Supermercati
1,5 Km
Conad
1,9 Km
Ali
2,0 Km
Alì Tombelle
2,5 Km
Negozi Negozi
Negozi
250 m
Panificio Galileo Fornasiero
260 m
Gastaldon
2,9 Km
Bar Bar
Gelateria Il pinguino
270 m
Nacht bar
1,5 Km
Bar
1,8 Km
Gsky
1,9 Km
Maori Cafè
2,0 Km
Ristoranti Ristoranti
Pizzeria Tom Jerry e Titty
270 m
Rosticceria
280 m
Ristorante al Cancelletto
290 m
Hostaria Al Canton
760 m
Trattoria all'Olmo
790 m
Mostra tutto

Caratteristiche

Rif.:
61137073
Piano:
1 di 3 con ascensore (Piano basso)
Posti auto:
8
Condizionamento:
Autonomo
Ascensore:
Riscaldamento:
Autonomo
Mostra tutto
Prezzo Prezzo
€ 6.200 / mese
Spese annue Spese annue
€ 8.000

Classe Energetica

D
D
D
D
D
D
D
D
D
EP globale non rinnovabile:
165.90 kW h/m² anno
EP globale rinnovabile:
165.90 kW h/m² anno
EP invernale del fabbricato:
EP estiva del fabbricato:
Anno di costruzione:
2005
Riscaldamento:
Autonomo
Tipo impianto:
Ad aria
Tipo alimentazione:
Aria

Ti interessa visionare l'immobile?

Fissa un appuntamento  Fissa un appuntamento

Richiedi informazioni

Clicca su Leggi per aprire l'informativa
* Questi campi sono obbligatori
Affiliato
Industriale Est Srl
Via Longhin, 93/95 35129 Padova (PD)

Il nostro staff


  • Ida Carraro
    Affiliata

  • Domiziano Daniele
    Responsabile

  • Nicole Marin
    Coordinatrice
Via Longhin, 93/95 35129 Padova (PD)
Zona: Padova Est-Padova ZIP - Camin
Mostra su mappa
Orari: Dal lunedì al venerdì: dalle 8:30 alle 12:30 e dalle 14:00 alle 19:00. Sabato dalle 9:00 alle 12:00
Affiliato
Industriale Est Srl
Via Longhin, 93/95 35129 Padova (PD)

2026 Tecnocasa Franchising S.p.A. - P. IVA 08365160152 - Via Monte Bianco 60/A 20089 Rozzano (MI). Ogni agenzia ha un proprio titolare ed è autonoma. Privacy policy | Policy utilizzo | Cookie policy