Ufficio in affitto

Padova, Viale Della Navigazione Interna - Zip
€ 700 / mese
3 locali 3 locali
68 Mq 68 Mq
1 bagno 1 bagno

Ufficio in affitto

Padova, Viale Della Navigazione Interna - Zip

Descrizione annuncio

LOCALITA’: ZIP (PD) –

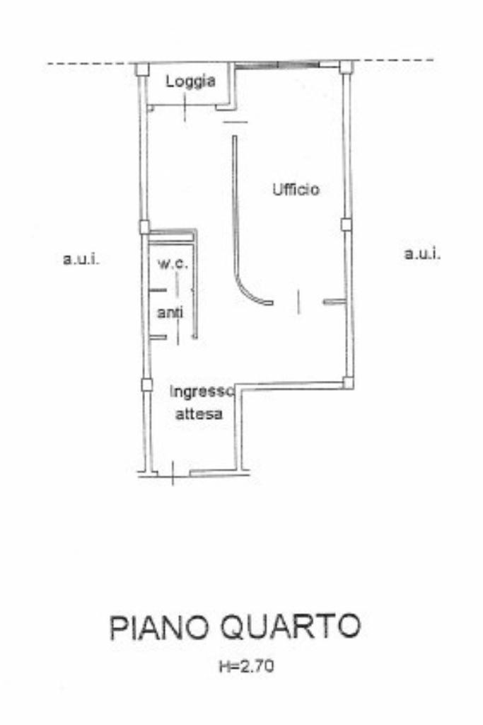
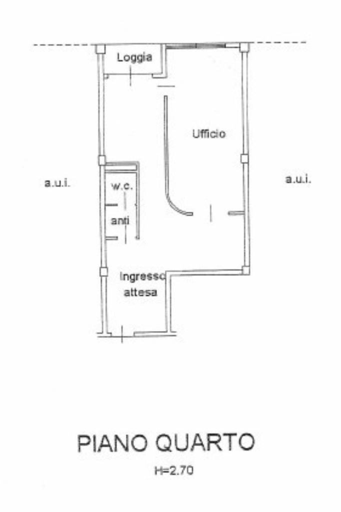
COSA SAPERE SULL’IMMOBILE: proponiamo in LOCAZIONE ufficio di 68 mq circa posto al quarto piano di palazzina direzionale/commerciale.

PARTICOLARITA’ e DESCRIZIONE:

- Superficie: la superficie complessiva di 68 mq è distribuita in 3 locali, consentendo una razionale ed efficiente organizzazione degli spazi lavorativi e gestionali. L’ufficio dispone di piccolo terrazzo.

- Posizione: l'ufficio si trova al quarto piano di un confortevole stabile a destinazione commerciale/direzionale, servito da ascensore.

- Impianti: l'immobile è dotato di impianti di riscaldamento e condizionamento completamente autonomo ed impianto elettrico a norma.

- Servizi igienici: l'ufficio è corredato da servizio igienico.

- Parcheggio: l'immobile dispone di un posto auto riservato.

- Accessibilità: l'accesso ai locali è facilitato dal fatto che l’immobile è servito da ascensore, rendendolo pienamente accessibile anche a persone con mobilità ridotta.

- Luminosità: gli spazi sono caratterizzati da una eccellente buona luce naturale, grazie alla presenza di ampie finestre.

- Spese condominiali: le spese condominiali dell'immobile ammontano a 600 euro/annui.

-Canone: SOGGETTO ad IVA.

UBICAZIONE e CONTESTO: situata in località ZIP, a pochi chilometri dal centro città. La posizione geografica lo rende ben collegato sia alla città di Padova che alle principali arterie stradali, come l’uscita autostradale Padova Est, consentendo facili spostamenti verso altre città della regione. La zona è prevalentemente industriale ma vanta anche aree commerciali, che contribuiscono alla vivacità economica della zona.

Mostra tutto

Nelle vicinanze

Trasporto pubblico Trasporto pubblico
Padova Interporto
Padova Interporto
1,4 Km
Viale Industria / Seconda Strada
Viale Industria / Seconda Strada
270 m
Viale Industria / Navigazione Interna
Viale Industria / Navigazione Interna
300 m
Ricariche auto elettriche Ricariche auto elettriche
Fondazione Fenice Green Energy Park Onlus | Driwe
980 m
ENEL X EVA+ e-distribuzione Via Urugay, 30 Padova
1,3 Km
IKEA Padova
1,5 Km
APS Cittadella Stanga
1,6 Km
EnelX EVA+ Padova Est
1,7 Km
Scuole Scuole
Scuole
1,3 Km
Asilo nido "La Balena Blu"
1,8 Km
Scuola elementare Dina Luzzatto
1,9 Km
Scuola Secondaria Falconetto
1,9 Km
Scuola dell'Infanzia Fornasari
2,1 Km
Farmacia Farmacia
Farmacia Faccioli
1,0 Km
Parafarmacia Conad
1,2 Km
Farmacia Gennaro
1,8 Km
Farmacia Mortise
2,1 Km
Farmacia all'Ippodromo
2,1 Km
Ospedali Ospedali
Croce Rossa
590 m
Istituto Oncologico Veneto
2,4 Km
Azienda Ospedaliera di Padova
2,6 Km
Ospedale Giustinianeo
2,8 Km
Ospedale Sant'Antonio
2,9 Km
Supermercati Supermercati
SPAK Supermercato
970 m
Conad
1,2 Km
La buona dispensa - Il supermercato del biologico
1,3 Km
Alì
1,6 Km
Despar
1,8 Km
Negozi Negozi
Gastaldon
940 m
Kiabi
1,4 Km
Negozi
1,9 Km
Panificio Galileo Fornasiero
1,9 Km
Panificio pasticceria S. Camillo
2,3 Km
Bar Bar
Bar
560 m
Didi's
670 m
Gsky
1,1 Km
Parco della Musica
1,8 Km
Gelateria Il pinguino
1,9 Km
Ristoranti Ristoranti
Ristobar Sapori
340 m
La Sirena Srl
410 m
Agriturismo La Scacchiera
580 m
Il Melograno
1,0 Km
GPizza
1,1 Km
Mostra tutto

Caratteristiche

Rif.:
61113918
Piano:
4 di 6 con ascensore (Piano alto)
Posti auto:
1
Condizionamento:
Autonomo
Ascensore:
Riscaldamento:
Autonomo
Mostra tutto
Prezzo Prezzo
€ 700 / mese
Spese annue Spese annue
€ 600

Classe Energetica

F
F
F
F
F
F
F
F
F
EP globale non rinnovabile:
137.70 kW h/m² anno
EP globale rinnovabile:
137.70 kW h/m² anno
EP invernale del fabbricato:
EP estiva del fabbricato:
Anno di costruzione:
2003
Riscaldamento:
Autonomo
Tipo impianto:
Ad aria
Tipo alimentazione:
Aria

Ti interessa visionare l'immobile?

Fissa un appuntamento  Fissa un appuntamento

Richiedi informazioni

Clicca su Leggi per aprire l'informativa
* Questi campi sono obbligatori
Affiliato
Industriale Est Srl
Via Longhin, 93/95 35129 Padova (PD)

Il nostro staff


  • Ida Carraro
    Affiliata

  • Domiziano Daniele
    Responsabile

  • Nicole Marin
    Coordinatrice
Via Longhin, 93/95 35129 Padova (PD)
Zona: Padova Est-Padova ZIP - Camin
Mostra su mappa
Orari: Dal lunedì al venerdì: dalle 8:30 alle 12:30 e dalle 14:00 alle 19:00. Sabato dalle 9:00 alle 12:00
Affiliato
Industriale Est Srl
Via Longhin, 93/95 35129 Padova (PD)

2026 Tecnocasa Franchising S.p.A. - P. IVA 08365160152 - Via Monte Bianco 60/A 20089 Rozzano (MI). Ogni agenzia ha un proprio titolare ed è autonoma. Privacy policy | Policy utilizzo | Cookie policy